- L’agence
- Architecture d’intérieur
- Rénovation
- Mobiliers
- Blog
Un studio de 25 m² au pied des pistes, acheté il y a quinze ans, avec sa moquette fatiguée, ses murs lambris miel et son coin cuisine qui sent encore les années 90… Ça vous parle ? Et Beaucoup de propriétaires repoussent le projet, persuadés que rénover un petit espace perché à 1 800 mètres d'altitude relève du parcours du combattant.
Il faut dire que les contraintes sont réelles : accès limité, artisans locaux surbookés, réglementations spécifiques aux copropriétés de montagne, délais serrés entre deux saisons… Mais la bonne nouvelle, c'est qu'une rénovation de studio à la montagne bien orchestrée peut littéralement métamorphoser votre bien, décupler son confort et booster sa valeur locative.
C'est exactement ce qu'on fait chez Ynspir : accompagner les propriétaires de studios en station dans leur projet de rénovation, de la première esquisse jusqu'à la remise des clés.
On ne rénove pas un studio aux Arcs comme on rénoverait n'importe quel appartement en station. Et pour cause : cette station savoyarde n'est pas un ensemble immobilier ordinaire. Conçue dans les années 70 sous l'impulsion de l'urbaniste Roger Godino et de l'architecte Charlotte Perriand, la station des Arcs est un véritable manifeste architectural. Chaque bâtiment, chaque résidence a été pensé pour s'intégrer au paysage, pour offrir un maximum de lumière naturelle et pour optimiser des espaces de vie compacts.
Charlotte Perriand, collaboratrice de Le Corbusier et figure majeure du design du XXᵉ siècle, a apporté aux Arcs sa vision radicalement fonctionnelle de l'habitat. Ses studios de montagne étaient de véritables prouesses d'aménagement : banquettes convertibles, rangements intégrés dans les cloisons, plans de travail rabattables, miroirs stratégiquement placés pour agrandir l'espace. Tout était millimétré.
Projet de Claire Muller, Architecte d'intérieur en Savoie pour Ynspir. Photos : Manu Reyboz
Rénover un appartement en ville, c’est déjà un sacré chantier. Mais quand on parle de rénovation studio à la montagne, on entre dans une autre dimension. Les contraintes sont spécifiques, et les ignorer, c’est s’exposer à des mauvaises surprises en cascade. Contactez notre équipe de Savoie, Haute Savoie et Vosges. Nos architectes d’intérieur de chalet seront s’adapter à vos besoins.
Nos équipes sont installées au plus proche de chez vous. Que vote projet soit dans les Vosges, en Savoie, Haute Savoie, Isère ou dans les Pyrénées, un collaborateur Ynspir pourra vous accompagner dans ce projet rénovation.
Prestation de coaching à distance Ynspir Virtuo vous permettant de vous projeter avant travaux, à moindre coût.
Nos architectes d'intérieur vous accompagnent de la décoration au suivi de chantier, en passant par les 3D et le courtage travaux.
Le budget varie fortement selon l'altitude, la proximité avec des points d'intérêts et le niveau de prestation attendu.
D’Aix les Bains à Courchevel, notre architecte d’intérieur de Savoie Claire vous apporte son expérience.
L’Isère et l’Alpes D’Huez se dynamise d’années en années : Clémentine vous accompagne partout.
Les studios de la Haute Savoie et de ses stations de skis n’attendent qud’être rénovés.
Quand on échange avec nos clients propriétaires de studios en station, les mêmes attentes reviennent systématiquement. Et elles vont bien au-delà d’un simple coup de peinture.
C’est souvent la priorité numéro un. Beaucoup de studios en montagne souffrent d’une isolation médiocre : simple vitrage, ponts thermiques, chauffage électrique d’un autre âge… Résultat : on grelotte en hiver, la facture d’énergie explose, et le confort est loin d’être au rendez-vous.
Une rénovation studio à la montagne digne de ce nom intègre systématiquement un volet thermique : remplacement des menuiseries, isolation des murs par l’intérieur (quand la copropriété ne permet pas l’ITE), mise en place d’un chauffage performant. En clair, on passe d’un espace où il faut garder son bonnet à l’intérieur à un vrai refuge douillet.
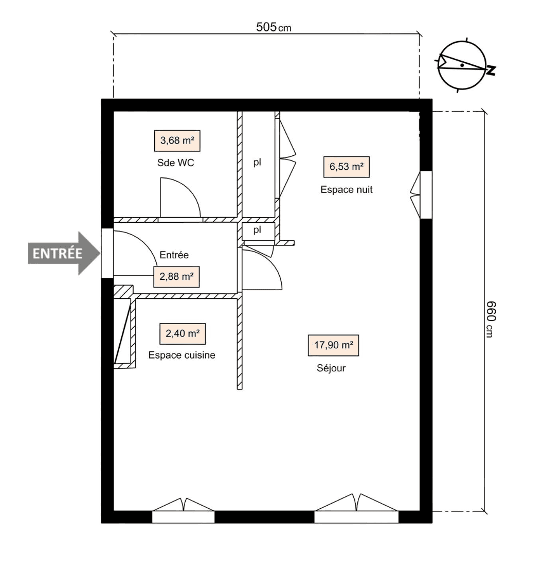
Dans 25 m², on doit pouvoir dormir confortablement, cuisiner, manger, ranger ses affaires de ski, sécher ses vêtements, et idéalement ne pas se sentir à l’étroit. Ça demande des solutions d’aménagement sur mesure : lits escamotables, rangements intégrés sous les assises, kitchenette compacte mais fonctionnelle, salle d’eau optimisée…
L’un de nos clients possédait un studio de 22 m² à Avoriaz. Avant rénovation, il pouvait accueillir deux personnes, difficilement. Après notre intervention, le même espace accueille confortablement quatre personnes grâce à un système de couchages modulables et des rangements pensés au millimètre. Sa capacité locative a doublé.
Le total look savoyard avec bardage bois brut partout, nappes à carreaux et cloches de vache accrochées au mur, c’est sympathique cinq minutes. Mais aujourd’hui, les voyageurs et les propriétaires recherchent quelque chose de plus subtil : une atmosphère chaleureuse et contemporaine, qui évoque la montagne sans en faire des tonnes.
On parle de bois naturel utilisé avec parcimonie, de teintes douces et minérales, de matières brutes comme la pierre ou le lin, le tout dans un esprit épuré avec des objets déco montagne. C’est cet équilibre entre authenticité et modernité qui fait la différence, et c’est précisément ce sur quoi nos architectes d’intérieur excellent.
Avant de lancer les travaux, on a défini avec notre client un cahier des charges précis. Car une rénovation studio à la montagne réussie, ça se prépare méticuleusement, surtout quand les contraintes sont multiples.
Voici les grandes lignes du projet :
Un programme ambitieux pour une petite surface, mais c’est précisément ce qui rend ce type de projet stimulant. En montagne, chaque décision compte double : un mauvais choix de matériau, un meuble mal dimensionné, et c’est tout l’équilibre du lieu qui bascule.
On en parle rarement dans les magazines déco, mais rénover en station, c’est un parcours du combattant logistique. Et c’est souvent ce qui fait grimper les budgets de manière inattendue.
Aux Arcs, certaines résidences ne sont accessibles que par funiculaire ou par des routes de montagne sinueuses. Acheminer des matériaux, c’est déjà une aventure. Un panneau de contreplaqué de 2,50 m ne rentre pas dans un funiculaire standard. Les livraisons doivent être planifiées en fonction des conditions météo, des horaires d’exploitation des remontées mécaniques et des règles de copropriété qui limitent souvent les créneaux de travaux.
Impossible de lancer un chantier en pleine saison de ski. Les travaux doivent se concentrer sur les intersaisons, généralement entre mi-avril et mi-juin ou entre septembre et novembre. Cela laisse des fenêtres de tir assez courtes, ce qui impose une préparation minutieuse en amont.
À 1 800 mètres, les conditions ne sont pas les mêmes qu’en plaine. Les temps de séchage des enduits et des peintures sont plus longs à cause de l’humidité et des variations de température. Certains matériaux réagissent différemment à l’altitude. Et il faut anticiper les problématiques de gel pour toute intervention sur la plomberie.
Chez Ynspir, on ne se contente pas de proposer de jolies planches d'ambiance. Notre approche est structurée, méthodique, et pensée pour répondre aux spécificités de chaque projet. Voici comment on procède, étape par étape.
Absolument, et c’est même le cas de la majorité de nos clients. Toute la phase de conception se fait à distance (visioconférences, échanges de plans et de visuels 3D), et la coordination du chantier est entièrement prise en charge par notre équipe. Vous recevez des photos et des comptes-rendus d’avancement réguliers, et vous n’avez besoin de vous déplacer que pour la réception finale, si vous le souhaitez.
Pour un rafraîchissement, comptez deux à trois semaines. Pour une rénovation complète d’un studio de 20 à 30 m², on est généralement sur 1 à 4 mois de travaux, selon la complexité du projet. Le plus important, c’est la phase de préparation en amont : plus elle est rigoureuse, plus le chantier se déroule rapidement.
Ça dépend de la nature des travaux. Pour des modifications intérieures qui ne touchent pas à la structure ni aux parties communes (peinture, sol, cuisine, salle de bain), une simple déclaration au syndic suffit généralement. En revanche, si vous souhaitez modifier des menuiseries extérieures, toucher à la façade ou intervenir sur des réseaux communs, une autorisation de l’assemblée générale des copropriétaires peut être nécessaire. Chez Ynspir, on vérifie systématiquement le règlement de copropriété en amont pour éviter toute mauvaise surprise.
Dans la grande majorité des cas, oui. Un studio rénové se loue plus cher (en moyenne 25 à 40 % de plus par nuitée), se loue plus facilement (meilleur taux d’occupation), et génère de meilleurs avis clients, ce qui alimente un cercle vertueux. Pour un investissement de 35 000 à 65 000 €, le retour sur investissement se situe généralement entre deux et quatre saisons, selon la station et le positionnement tarifaire.
Fort de cette expérience et de nombreux autres projets similaires, voici les enseignements clés que l'on partage systématiquement avec nos clients :
1. Ne sous-estimez jamais la phase de diagnostic. Avant de rêver déco, faites réaliser un état des lieux technique complet : isolation, électricité, plomberie, ventilation. C'est la base de tout. Un diagnostic sérieux coûte entre 300 et 600 €, mais il peut vous éviter des milliers d'euros de mauvaises surprises en cours de chantier.
2. Pensez « sur mesure » dès le départ. Dans un studio de montagne, le mobilier standard est rarement adapté. Un canapé-lit classique de 140 cm de large peut bloquer toute la circulation. Investir dans du mobilier sur mesure, c'est souvent ce qui fait la différence entre un studio où l'on se sent à l'étroit et un studio où l'on respire.
3. Respectez l'identité du lieu. Que votre studio soit aux Arcs, à Avoriaz, à La Plagne ou ailleurs, chaque station a son histoire architecturale. S'en inspirer plutôt que la nier, c'est la garantie d'un résultat cohérent et authentique. Et les locataires comme les acheteurs potentiels y sont de plus en plus sensibles.
4. Anticipez la logistique. Planifiez vos travaux en intersaison, réservez les artisans locaux bien en avance (ils sont très sollicités), et prévoyez un plan B pour les livraisons en cas de météo capricieuse.
5. Faites-vous accompagner. Une rénovation studio à la montagne cumule les contraintes : techniques, logistiques, patrimoniales, réglementaires. Faire appel à un architecte d'intérieur qui connaît ces problématiques, c'est un investissement qui se rentabilise largement, en temps gagné, en erreurs évitées et en résultat final.
